ARCHITEKTONICKÉ
STUDIE

Chcete si postavit dům na míru? Máte v plánu stavební projekt, který vyžaduje individuální přístup? Ať už se jedná o malý nebo velký projekt, pokud máte specifickou představu, kterou nenajdete v katalogových domech, rádi vám ji navrhneme na míru. 

Firma Easy Homes Solutions s. r. o. nabízí vedle projektování domů také architektonické studie, což je první krok k vytvoření komplexního návrhu stavby. Architektonické studie kladou důraz na individuální řešení projektu jak z vizuálního, tak i funkčního hlediska. Důležitá jsou pro nás přání klienta, která kombinujeme s našimi profesionálními zkušenostmi, aby vznikl kvalitní návrh stavby pro konkrétní místo.

Díky architektonickému návrhu bude stavba přizpůsobena Vašim potřebám a pozemku, a bude Vám tak dobře sloužit dlouhá léta.

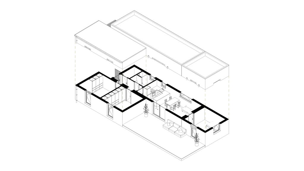
Co může architektonická studie nabídnout?

Návrh stavby tvoříme postupně krok za krokem a průběžně konzultujeme s Vámi. Nejprve se sejdeme a stanovíme cíle stavby a Vaše preference, ať už se jedná o vizuální či funkční stránku. Na základě Vašich představ a podmínek vytvoříme koncept domu – hrubý návrh, který zahrnuje hmotovou představu, funkční propojení či rozdělení prostor a inspiraci pro architektonické pojetí. Po odsouhlasení konceptu začneme pracovat na detailní architektonické studii, která zahrnuje přesné velikosti domu, místností, jejich materiálové pojetí a případné umístění nábytku, aby byl návrh funkční. Po dokončení a odsouhlasení finálního návrhu Vám připravíme portfolio, které obsahuje všechny výkresy stavby a vizualizace domu na pozemku

Závěrem

Architektonická studie poskytuje detailní představu o Vašem vysněném domě, která slouží jako podklad k projektové dokumentaci potřebné pro stavební povolení. Během tvorby architektonické studie je prostor pro řešení prostorového uspořádání stavby, konzultace inspirací a začlenění různých architektonických prvků a materiálů dle přání klienta.

Díky architektonickému návrhu si vytvoříte dům na míru podle Vašich přání, očekávání do budoucna a možností pozemku. Odborná konzultace může zajistit delší uživatelnost domu a Vaši spokojenost.

Napište nám